Problém s brzdovým světlem
- Jarek83
- Nováček

- Příspěvky: 55
- Registrován: 02.02.2008 03:18
- Bydliště: Breclav
Problém s brzdovým světlem
Zdravím,
chci se zpetat. Mám menší problém se zadním levým brzdovým světlem.
Předevčírem mi přestalo svítit, tak jsem světlo sundal, ale žárovka prasklá není. Zklusil jsem tam dát novou, ale taky bez výsledku.
Zkoušel jsem trochu zvednout kontakty, ale nepomohlo to.
Nechápu. Normální světlo svítí, ale brzdové už ne.
Setkal se s tímto už někdo?
Díky za každou odpověď.
chci se zpetat. Mám menší problém se zadním levým brzdovým světlem.
Předevčírem mi přestalo svítit, tak jsem světlo sundal, ale žárovka prasklá není. Zklusil jsem tam dát novou, ale taky bez výsledku.
Zkoušel jsem trochu zvednout kontakty, ale nepomohlo to.
Nechápu. Normální světlo svítí, ale brzdové už ne.
Setkal se s tímto už někdo?
Díky za každou odpověď.
Ford Focus Combi, 1,6 16V, 74kW - ZETEC-S - r.99, zelená metalíza / <br>
- Jarek83
- Nováček

- Příspěvky: 55
- Registrován: 02.02.2008 03:18
- Bydliště: Breclav
- pelen
- Test driver

- Příspěvky: 9259
- Registrován: 02.02.2008 03:18
- Bydliště: Nový Jičín
- Kontaktovat uživatele:
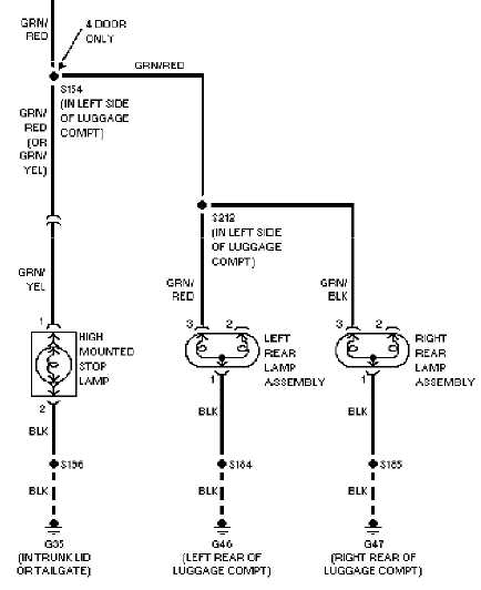
Stahni si elektricka schemata:
http://www.fordfocus.hostuju.cz/
http://www.fordfocus.hostuju.cz/
- Přílohy
-
- brzdova svetla.jpg
- (22.44 KiB) Staženo 172 x
- Kóťa
- Test driver

- Příspěvky: 9765
- Registrován: 02.02.2008 03:18
- Bydliště: Střední Čechy
- Kontaktovat uživatele:
- Kóťa
- Test driver

- Příspěvky: 9765
- Registrován: 02.02.2008 03:18
- Bydliště: Střední Čechy
- Kontaktovat uživatele:
- hihi
- Zkušený

- Příspěvky: 1020
- Registrován: 02.02.2008 03:18
- Jarek83
- Nováček

- Příspěvky: 55
- Registrován: 02.02.2008 03:18
- Bydliště: Breclav
Tak to bude asi muj problém, proč mi nesvití brzdovka, taky to mám právě zvednutý cca 0,5cm. Ale myslim, že když nasadím tu celou žárovkovou desku zpět do světla, tak by se to mělo aspoň trochu přimáčknout. Zkusím na to mrknout co s tím... Ale díky. Úplně jsem na tohle zapomněl..hihi píše:Já měl prasklý plastový "kolíčky", který drží ty přívodní plechy přímo u žárovky. Když jsem nasadil žárovku, tak se to mírně odchlíplo a nesvítila mi taky JEN brzdovka.
Ford Focus Combi, 1,6 16V, 74kW - ZETEC-S - r.99, zelená metalíza / <br>
- pelen
- Test driver

- Příspěvky: 9259
- Registrován: 02.02.2008 03:18
- Bydliště: Nový Jičín
- Kontaktovat uživatele:
Kdo je online
Uživatelé prohlížející si toto fórum: Ahrefs [Bot] a 2 hosti




