Dodatečná montáž vyhřívání sedadel

Odpovědět
piles
Nováček
Nováček
Příspěvky: 3
Registrován: 28.01.2016 21:21

Re: Vyhrivani prednich sedadel (made in Ford)

Příspěvek od piles » 16.02.2016 09:23

Ďakujem, ale stále neviem ktoré piny sú na podsvietenie :(
Vyhrievanie mi už funguje, ešte by som to chcel podsvietit :)

Piles

Uživatelský avatar
jirkaj
Člen klubu
Člen klubu
Příspěvky: 878
Registrován: 28.04.2013 20:47
Bydliště: Vsetín

Re: Vyhrivani prednich sedadel (made in Ford)

Příspěvek od jirkaj » 16.02.2016 09:29

podsvětlení.png
podsvětlení.png (7.21 KiB) Zobrazeno 4916 x
2 a 3 (v podstatě jenom propojíš 2 z vyhřívání okna na 2 na ovládání výhřevu sedáku, to samé s 3 z okna na 1 ovladače sedáku)

piles
Nováček
Nováček
Příspěvky: 3
Registrován: 28.01.2016 21:21

Re: Vyhrivani prednich sedadel (made in Ford)

Příspěvek od piles » 16.02.2016 10:33

Ďakujem, zapojene - všetko funguje :Dancer:

Piles

Uživatelský avatar
foker
Pokročilý
Pokročilý
Příspěvky: 551
Registrován: 15.01.2012 14:27
Bydliště: Nitra

Re: Vyhrivani prednich sedadel (made in Ford)

Příspěvek od foker » 06.02.2017 21:13

Ahojte.Tento vikend som si aj ja spravil ohrev zadku.Neorigo.Zaujima ma len ako ste tam davali tie decky na sedak ked je to rozdelene na 2 casti.Ja som tu plastovu tycku odtial vyrezal,ved decka sa neda rozdelit.

Odoslané z H60-L04 pomocou Tapatalku
Ford S-Max 2014 2.0TDCi 120kW

Uživatelský avatar
jirkaj
Člen klubu
Člen klubu
Příspěvky: 878
Registrován: 28.04.2013 20:47
Bydliště: Vsetín

Re: Vyhrivani prednich sedadel (made in Ford)

Příspěvek od jirkaj » 07.02.2017 06:24

Tady je to spíš o originálním výhřevu a origo dečkách. Ty mají uprostřed výřez.

Uživatelský avatar
foker
Pokročilý
Pokročilý
Příspěvky: 551
Registrován: 15.01.2012 14:27
Bydliště: Nitra

Re: Vyhrivani prednich sedadel (made in Ford)

Příspěvek od foker » 07.02.2017 19:30

Ja viem ze je to tu o origo,len som bol zvedavy

Odoslané z H60-L04 pomocou Tapatalku
Ford S-Max 2014 2.0TDCi 120kW

sutech
Nováček
Nováček
Příspěvky: 15
Registrován: 22.02.2015 08:23
Bydliště: Návsí

Re: Vyhrivani prednich sedadel (made in Ford)

Příspěvek od sutech » 13.02.2017 06:47

Ahoj, napasuju na tu focusovou predpripravu jakekoli decky ford nebo jen focus/cmax? muzu mit decky z Mondeo III...
Focus 1,6; r.v. 09; FL

Uživatelský avatar
ZaQik
Admin
Admin
Příspěvky: 25000
Registrován: 30.05.2010 17:33
Bydliště: exit 82 na D0

Re: Vyhrivani prednich sedadel (made in Ford)

Příspěvek od ZaQik » 13.02.2017 08:54

jen focus mk2, cmax mk1 nebo kuga mk1
Ford Focus mk3 combi 1.6 Ti-VCT, r.v.2018 + Ford Fiesta mk7 3D 1.25, r.v.2014
byl Ford Focus mk2 combi 1.6, r.v.2009 + Ford Fiesta mk6 1.4 TDCi r.v. 2004
Nejsem poradna, encyklopedie ani hotline spolecnosti Ford - ptejte se na foru, od toho je.

I__C__E
Nováček
Nováček
Příspěvky: 124
Registrován: 01.05.2010 23:07

Re: Vyhrivani prednich sedadel (made in Ford)

Příspěvek od I__C__E » 09.05.2017 18:55

Ahoj, mám ghia 2006, pod panelem vyhrivani oken, žádné další konektory kromě deaktivace airbagu nebyly, tudíž předpokládám, že není předpříprava, není někde detailní foto návod, jak připojit sedadla s vyhříváním a kompletně elektrické do auta..díly mám..díky moc

Uživatelský avatar
ZaQik
Admin
Admin
Příspěvky: 25000
Registrován: 30.05.2010 17:33
Bydliště: exit 82 na D0

Re: Vyhrivani prednich sedadel (made in Ford)

Příspěvek od ZaQik » 09.05.2017 19:05

Ford Focus mk3 combi 1.6 Ti-VCT, r.v.2018 + Ford Fiesta mk7 3D 1.25, r.v.2014
byl Ford Focus mk2 combi 1.6, r.v.2009 + Ford Fiesta mk6 1.4 TDCi r.v. 2004
Nejsem poradna, encyklopedie ani hotline spolecnosti Ford - ptejte se na foru, od toho je.

Uživatelský avatar
Masin
Nováček
Nováček
Příspěvky: 93
Registrován: 04.04.2017 08:21
Bydliště: Vedrovice (kousek od Brna)

Re: Vyhrivani prednich sedadel (made in Ford)

Příspěvek od Masin » 19.06.2017 20:42

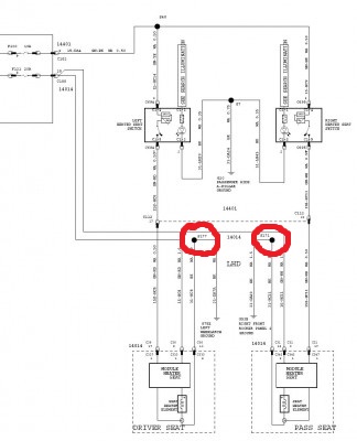
Potřebuji pomoc, budu dodělávat výhřev sedadel, elektrika není můj koníček. Schéma zapojení výhřevu jsem snad pochopil, akorád potřebuji poradit, co je a kde to mám hledat v autě to červeně zakroužkované S177 a S171. :bebng: Poraďte prosím.
Přílohy
ff2_vyhrivani_schema.jpg
Ford Focus II 1,8 TDCi, barva černá Panther

Galerie: https://www.ford-focus.cz/forum/viewtopi ... BD+panther

Uživatelský avatar
Adow
Člen klubu
Člen klubu
Příspěvky: 6808
Registrován: 20.05.2011 09:52
Bydliště: Kousek od Brna

Příspěvek od Adow » 19.06.2017 20:54

Uzel nehledej, prostě se připoj na kostru..

lukas77
Příspěvky: 1
Registrován: 07.02.2018 21:39

Re: Vyhrivani prednich sedadel (made in Ford)

Příspěvek od lukas77 » 19.02.2018 22:10

Ahoj mám mondeo MK3, a mám origo vepředu vyhřívané sedačky.
Řidičovo sedačka nefunguje (na 99% vím že je zničená tepelná dečka, ale jen sedák)
Moje otázka zní.. Nevíte někde kde se dá sehnat ? Za nějaký normální peníze ??
Fiat Palio 1.9 JTD 59kw
Nissan Pimera p12 2.2di 93kw
Ford Mondeo MK3 2.2 tdci 114kw

Uživatelský avatar
tommula
Zkušený
Zkušený
Příspěvky: 1683
Registrován: 05.11.2013 13:28
Bydliště: Zlín

Re: Vyhrivani prednich sedadel (made in Ford)

Příspěvek od tommula » 20.02.2018 06:47

jsi si jisty ze je znicena? obcas bysva jen prethly dratek v sedacce....
jinak vrakac ale koipit cely sedak a vyndat
Naše -Tommulovo- přibližovadlo FF3 RedCa
Naše rodinné stříbrné přibližovadlo FF 2 1,6 Kombi - prodáno

Uživatelský avatar
ZaQik
Admin
Admin
Příspěvky: 25000
Registrován: 30.05.2010 17:33
Bydliště: exit 82 na D0

Re: Vyhrivani prednich sedadel (made in Ford)

Příspěvek od ZaQik » 20.02.2018 06:55

ano, je to zlomeny dratek tesne u decky ... rozeber to a uvidis
Ford Focus mk3 combi 1.6 Ti-VCT, r.v.2018 + Ford Fiesta mk7 3D 1.25, r.v.2014
byl Ford Focus mk2 combi 1.6, r.v.2009 + Ford Fiesta mk6 1.4 TDCi r.v. 2004
Nejsem poradna, encyklopedie ani hotline spolecnosti Ford - ptejte se na foru, od toho je.

Odpovědět

Zpět na „Focus - interier - 2004 - 2011“

Kdo je online

Uživatelé prohlížející si toto fórum: Žádní registrovaní uživatelé a 0 hostů