Zdravím, potřeboval bych poradit od nějakého stavebního projktanta nebo statika.
Problém je takový:
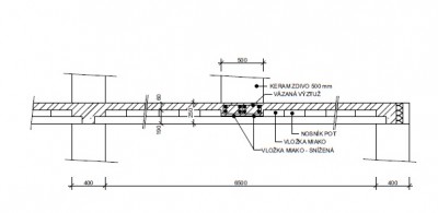
Je možné na keramický skládaný strop provést nosnou stěnu tl. 500 mm z keramických tvarovek?? Je možné toho docílit pomocí ztužujícího žebra (něco jako na obrázku, kreslený narychlo), popřípadě jinak, nebo je tu úplně nereálné. Pokud ano, vyřešila by tento problém ŽB deska s vhodně navrženou výztuží??
Za reakce děkuji.
Stropní konstrukce - rada
- HonzaNovotny
- Junior

- Příspěvky: 311
- Registrován: 12.05.2012 23:04
- Bydliště: Pardubický kraj
- ZaQik
- Admin

- Příspěvky: 24908
- Registrován: 30.05.2010 17:33
- Bydliště: exit 82 na D0
Re: Stropní konstrukce - rada
to "ztužující žebra" budes muset pevne uchytit do nosne svisle konstrukce pod nim ... stavebne asi vopruz, ale nech si to spocitat u statika (s opravdovym vykresem puvodni stavby) a budes moudrejsi
Ford Focus mk3 combi 1.6 Ti-VCT, r.v.2018 + Ford Fiesta mk7 3D 1.25, r.v.2014
byl Ford Focus mk2 combi 1.6, r.v.2009 + Ford Fiesta mk6 1.4 TDCi r.v. 2004
Nejsem poradna, encyklopedie ani hotline spolecnosti Ford - ptejte se na foru, od toho je.
byl Ford Focus mk2 combi 1.6, r.v.2009 + Ford Fiesta mk6 1.4 TDCi r.v. 2004
Nejsem poradna, encyklopedie ani hotline spolecnosti Ford - ptejte se na foru, od toho je.
Kdo je online
Uživatelé prohlížející si toto fórum: Žádní registrovaní uživatelé a 1 host


